
Vision
FROM
$ 332,7123 Bedroom House




Overview
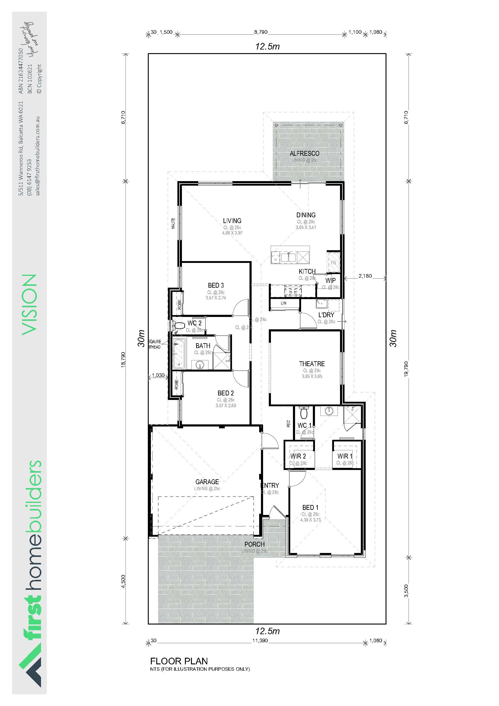
Enjoy the open plan entertaining zone of this popular three bedroom, two bathroom home. This plan offers the perfect blend of practical in-built spaces with serious flair. Designed to maximise your 12.5m wide block it also includes- Pet zone for your cherished best friend
- Theatre
- Luxury Master suite with huge walk in robe and ensuite
- Galley kitchen perfect for entertaining
+ Show More
Home Inclusion
WHAT’S INCLUDED IN THE PRICE?
One of the more overwhelming phases of the home building process can come right at the start, when you’re attempting to figure out what is included and what isn’t.
PEACE OF MIND
- 100mm Concrete Slab
- Planning fees included where applicable
- 6 months Service Warranty
- Boundary re-peg & Contour survey
- HIA Fixed Price Building Contract
- Housing and indemnity insurance
- 10m Service run ins
- Quality products and services
- Built by quality tradespeople
- WA owned and independent builder
- Building licence and water corporation fees included
+ Show More

Book a FREE consult
Speak to one of our industry experts with no strings attached.

Take a look at our house designs
Scroll through our range of house designs and floor plan layouts to find your perfect fit.